The Town of Elk Point has introduced a new incentive program to encourage new residents and businesses to grow with the community. Councillor Lorne Young explains that the incentives are greater the sooner you start building.
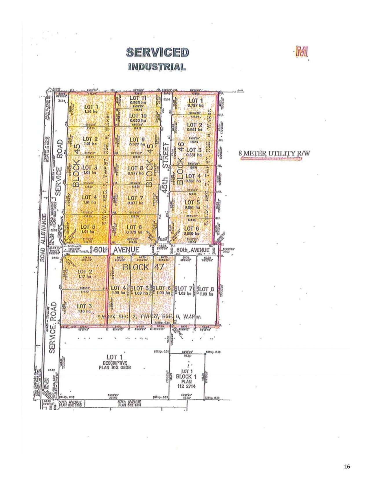
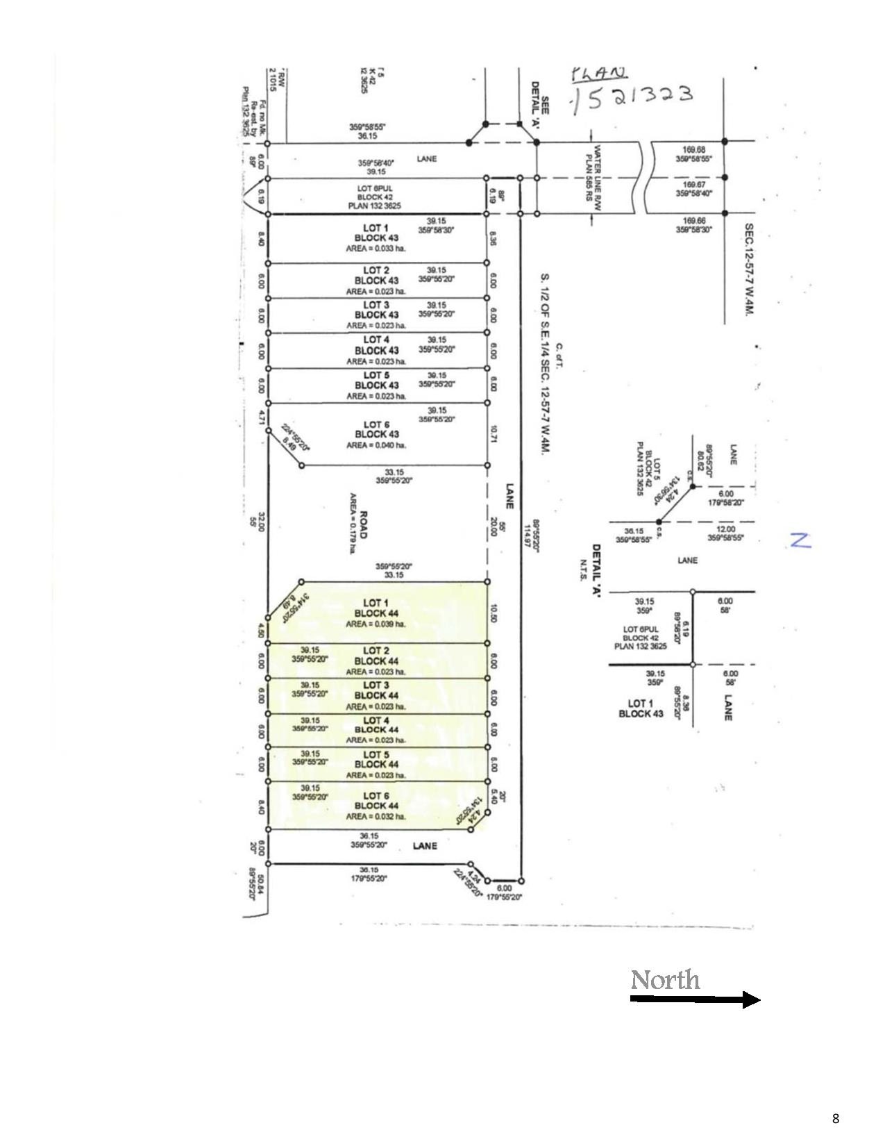
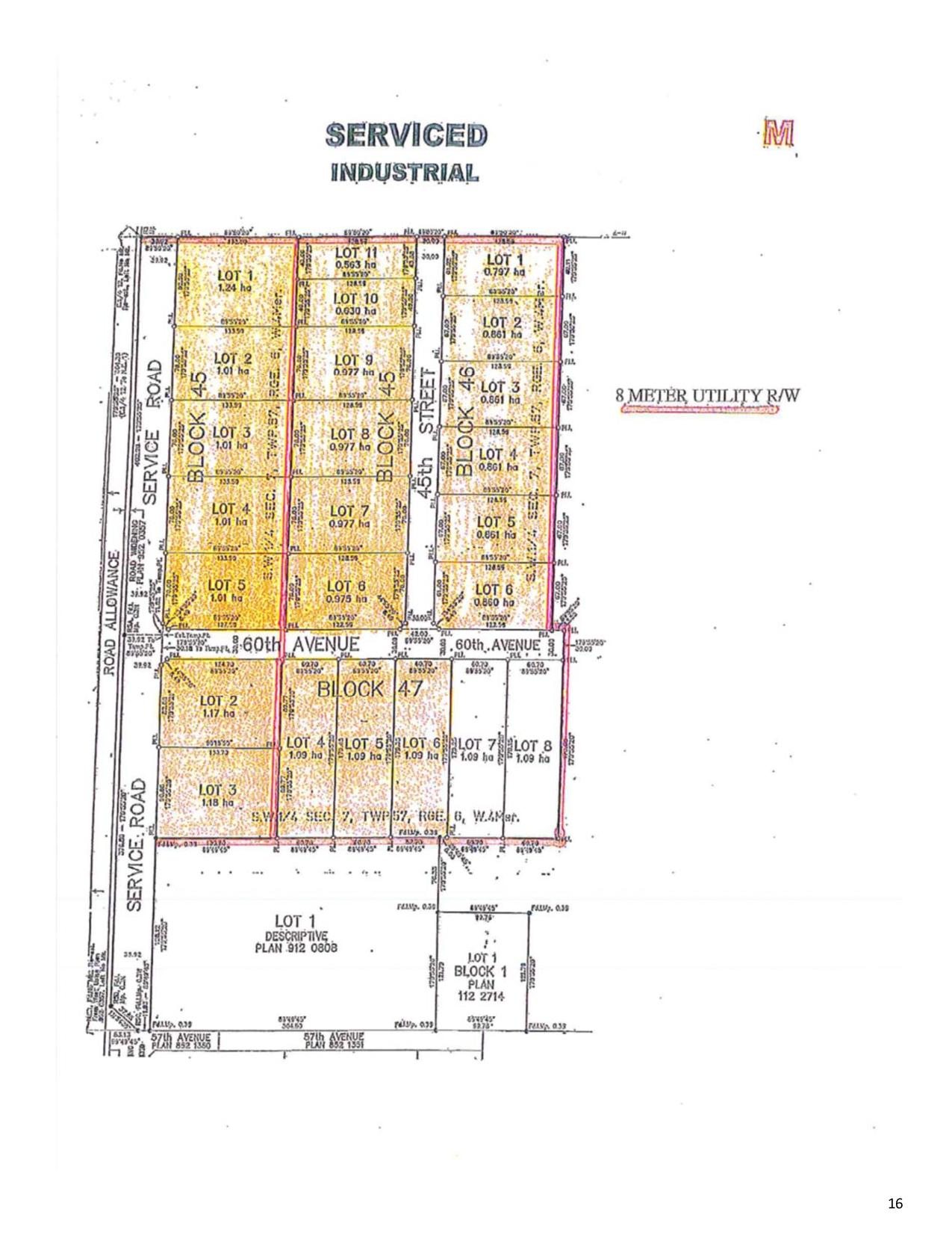
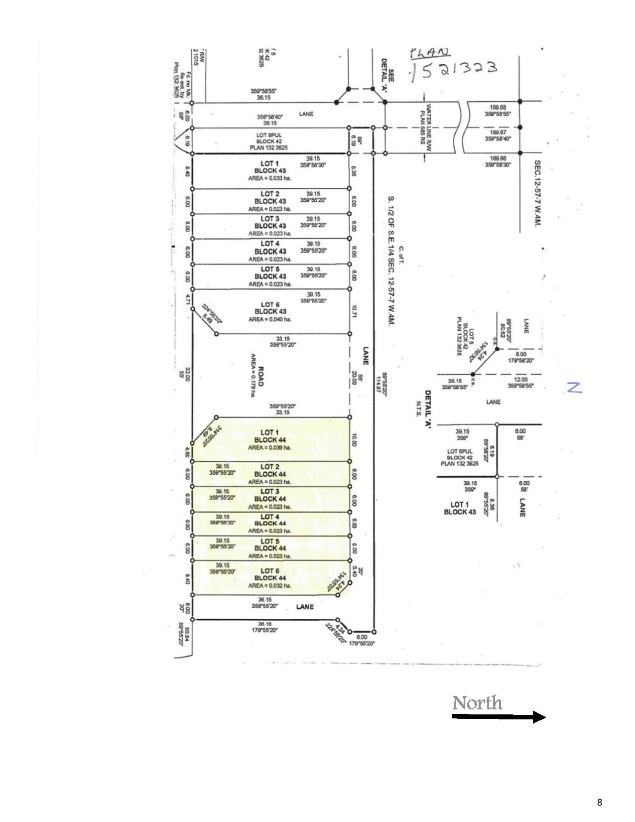
There are 14 new residential lots that the Town is developing on the north end of Elk Point, Phase II of Centennial Drive. Young says there are attractive benefits to breaking ground in one of these lots, “if you buy one of the lots and you take out a development permit and you build on it in a year, we will refund 10 percent of the purchase price of the lot. If you do it within 24 months, we’ll refund five percent of the purchase price of the lot.”
The Town is also looking into other incentive programs for commercial lots and residential lots that are empty in other areas of town. There’s nothing in place yet, but the community hopes with the success of the Phase II development the town will be able to expand the program into other areas.
For more information visit elkpoint.ca
Help us stay Connected! If you enjoy our content, consider giving us a small tip. Your $2 tip helps us get out in the community, attend the events that matter most to you and keep the Lakeland Connected! Use our secure online portal (no account needed) to show your appreciation today!
Elk Point Grows New Incentive Program
The Town of Elk Point has introduced a new incentive program to encourage new residents and businesses to grow with the community. Councillor Lorne Young explains that the incentives are greater the sooner you start building.
There are 14 new residential lots that the Town is developing on the north end of Elk Point, Phase II of Centennial Drive. Young says there are attractive benefits to breaking ground in one of these lots, “if you buy one of the lots and you take out a development permit and you build on it in a year, we will refund 10 percent of the purchase price of the lot. If you do it within 24 months, we’ll refund five percent of the purchase price of the lot.”
The Town is also looking into other incentive programs for commercial lots and residential lots that are empty in other areas of town. There’s nothing in place yet, but the community hopes with the success of the Phase II development the town will be able to expand the program into other areas.
For more information visit elkpoint.ca
Help us stay Connected! If you enjoy our content, consider giving us a small tip. Your $2 tip helps us get out in the community, attend the events that matter most to you and keep the Lakeland Connected! Use our secure online portal (no account needed) to show your appreciation today!







